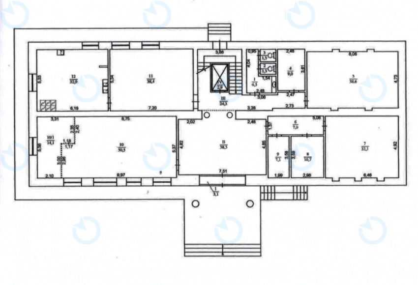
Офіс Продаж офісу 1856 м.кв 1 поверх Тютюнника, 28Б

Від 6735 $ / м²
Статус - Вільний
Характеристики
  • Тип угоди: Продаж
  • Розміщення: Тютюнника, 28Б
  • Клас: Окрема будівля
  • Адреса: вул. Тютюнника, 28Б
  • Район: Печерський
  • Метро: Палац Україна
  • Площа, м2: 1856 XXL
  • поверх: 1
  • планування: кабінетне
  • стан: офісний ремонт
  • кондиціювання: центральне
Додати в порівняння
З усіма додатковими питаннями звертайтеся за тел.
Business
Centre
Інформація про Бізнес-центр
Натисніть для відображення карти
Оренда і продаж
Помещение
Окрема будівля
Тютюнника, 28Б
Загальна площа, м2: 1856
  • Район: Печерський
  • адреса: вул. Тютюнника, 28Б
Від 29.63 $ 2