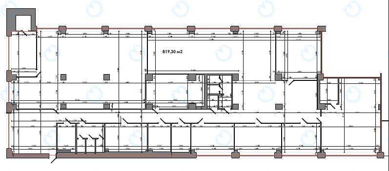
Офіс Оренда офісу 808 м.кв 1 поверх Форум Парк Плаза

Від 5 $ / м²
Статус - Вільний
Комунальні - за лічильниками
Характеристики
  • Тип угоди: Оренда
  • Розміщення: Форум Парк Плаза
  • Клас: B
  • Адреса: пр-т. Степана Бандери, 9
  • Район: Оболонський
  • Метро: Почайна
  • Площа, м2: 808 XL
  • поверх: 1
  • планування: змішана
  • стан: офісний ремонт
  • кондиціювання: центральне
Додати в порівняння
З усіма додатковими питаннями звертайтеся за тел.
Business
Centre
Інформація про Бізнес-центр
Натисніть для відображення карти
Оренда
Бізнес-центр
B
Форум Парк Плаза
Загальна площа, м2: 33000
  • Район: Оболонський
  • адреса: пр-т. Степана Бандери, 9
Від 4.50 $ 2