Офіс Оренда офісу 737 м.кв 18 поверх ЄВРОПА

Від 17 $ / м²
Статус - Вільний
Комунальні - за лічильниками
Характеристики
  • Тип угоди: Оренда
  • Розміщення: ЄВРОПА
  • Клас: B
  • Адреса: Столичне шосе, 103
  • Район: Голосіївський
  • Метро: Видубичі
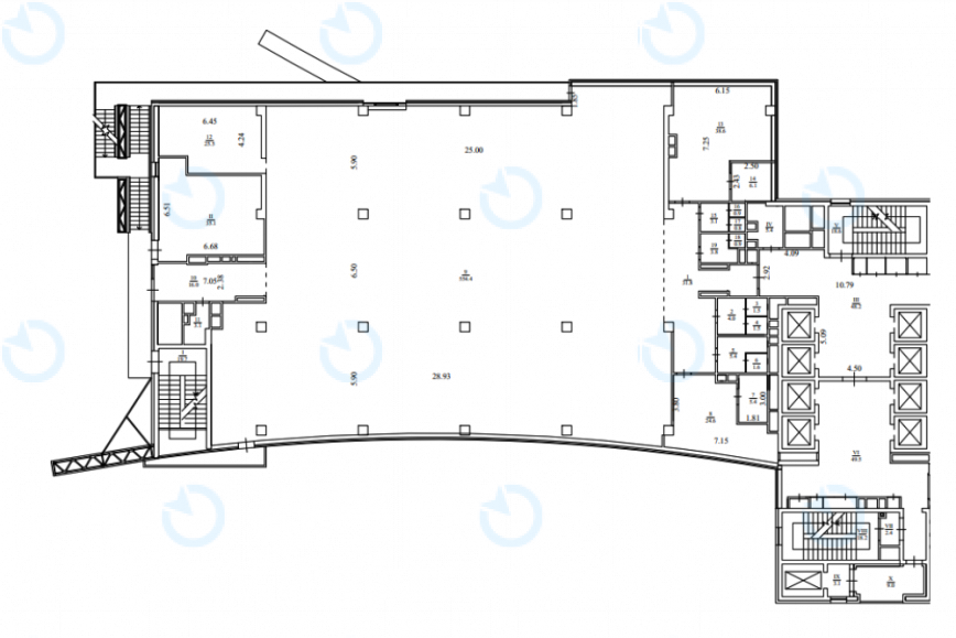
  • Площа, м2: 737 XL
  • поверх: 18
  • планування: open space
  • стан: офісний ремонт
  • кондиціювання: центральне
Додати в порівняння
З усіма додатковими питаннями звертайтеся за тел.
Business
Centre
Інформація про Бізнес-центр
Натисніть для відображення карти
Оренда
Бізнес-центр
B
ЄВРОПА
Загальна площа, м2: 21817
  • Район: Голосіївський
  • адреса: Столичне шосе, 103
Від 15.00 $ 2