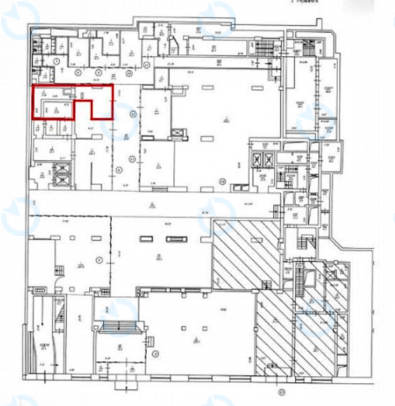
Офіс Оренда офісу 60 м.кв 1 поверх Леонардо (II черга)

Від 25 $ / м²
Статус - Вільний
Комунальні - по факту використання
Характеристики
  • Тип угоди: Оренда
  • Розміщення: Леонардо (II черга)
  • Клас: A
  • Адреса: вул. Богдана Хмельницького, 19-21
  • Район: Шевченківський
  • Метро: Золоті ворота
  • Площа, м2: 60 S
  • поверх: 1
  • планування: кабінетне
  • стан: офісний ремонт
  • кондиціювання: центральне
Додати в порівняння
З усіма додатковими питаннями звертайтеся за тел.
Business
Centre
Інформація про Бізнес-центр
Натисніть для відображення карти
  • Акція
  • Топ
  • Власник
Оренда
Бізнес-центр
A
Леонардо (II черга)
Загальна площа, м2: 38000
  • Район: Шевченківський
  • адреса: вул. Богдана Хмельницького, 19-21
Від 25.00 $ 2