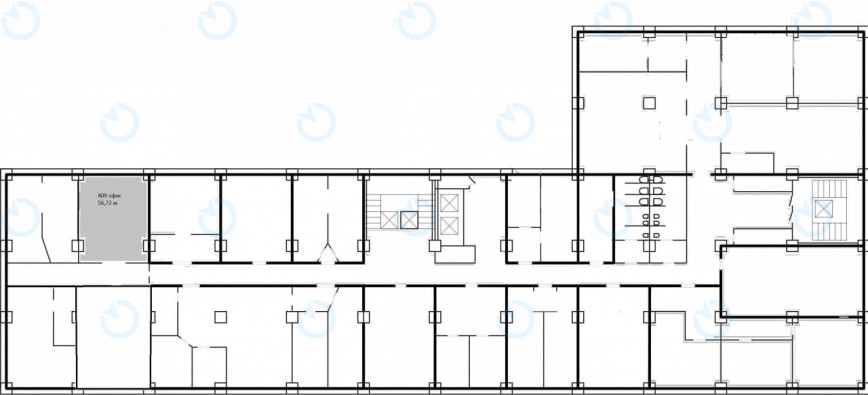
Офіс Оренда офісу 56 м.кв 4 поверх НЕСТ

Від 330 грн / м²
Статус - Вільний
Комунальні - по факту використання
Характеристики
  • Тип угоди: Оренда
  • Розміщення: НЕСТ
  • Клас: C
  • Адреса: вул. Липківського, 45
  • Район: Солом'янський
  • Метро: Вокзальна
  • Площа, м2: 56 S
  • поверх: 4
  • планування: кабінет
  • стан: офісний ремонт
  • кондиціювання: спліт-система
Додати в порівняння
З усіма додатковими питаннями звертайтеся за тел.
Business
Centre
Інформація про Бізнес-центр
Натисніть для відображення карти
  • Топ
Оренда
Бізнес-центр
C
НЕСТ
Загальна площа, м2: 13414
  • Район: Солом'янський
  • адреса: вул. Липківського, 45
Від 350.00 грн 2