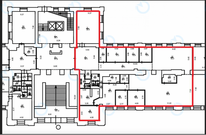
Офіс Оренда офісу 461 м.кв 1 поверх Ренесанс

Від 10 $ / м²
Статус - Вільний
Комунальні - за лічильниками
Характеристики
  • Тип угоди: Оренда
  • Розміщення: Ренесанс
  • Клас: B
  • Адреса: вул, Бульварно-Кудрявська, 24
  • Район: Шевченківський
  • Метро: Університет
  • Площа, м2: 461 L
  • поверх: 1
  • планування: кабінетна
  • стан: офісний ремонт
  • кондиціювання: центральне
  • Додатково: Свій с/вузол; Своя кухня; Перший поверх; Окремий вхід
Додати в порівняння
З усіма додатковими питаннями звертайтеся за тел.
Business
Centre
Інформація про Бізнес-центр
Натисніть для відображення карти
  • Топ
Оренда
Бізнес-центр
B
Ренесанс
Загальна площа, м2: 17100
  • Район: Шевченківський
  • адреса: вул, Бульварно-Кудрявська, 24
Від 10.00 $ 2