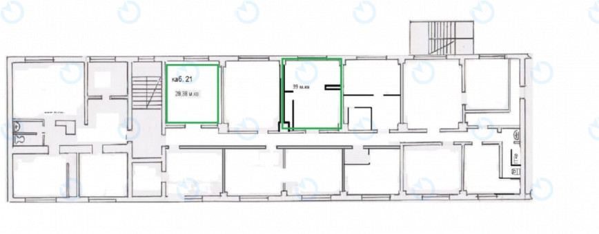
Офіс Оренда офісу 39 м.кв 2 поверх Дегтярівська, 25А

Від 185 грн / м²
Статус - Вільний
Комунальні - по факту використання
Характеристики
  • Тип угоди: Оренда
  • Розміщення: Дегтярівська, 25А
  • Клас: Окрема будівля
  • Адреса: вул. Дегтярівська, 25А
  • Район: Шевченківський
  • Метро: Шулявська
  • Площа, м2: 39 XS
  • поверх: 2
  • планування: кабінет
  • стан: офісний ремонт
  • кондиціювання: встановлено
Додати в порівняння
З усіма додатковими питаннями звертайтеся за тел.
Business
Centre
Інформація про Бізнес-центр
Натисніть для відображення карти
Оренда
Помещение
Окрема будівля
Дегтярівська, 25А
Загальна площа, м2: 2000
  • Район: Шевченківський
  • адреса: вул. Дегтярівська, 25А
Від 185.00 грн 2