Офіс Оренда офісу 303 м.кв 2 поверх Ультрамарин

Від 5 $ / м²
Статус - Вільний
Комунальні - по факту використання
Характеристики
  • Тип угоди: Оренда
  • Розміщення: Ультрамарин
  • Клас: B
  • Адреса: вул. Василя Липківського, 1А
  • Район: Солом'янський
  • Метро: Вокзальна
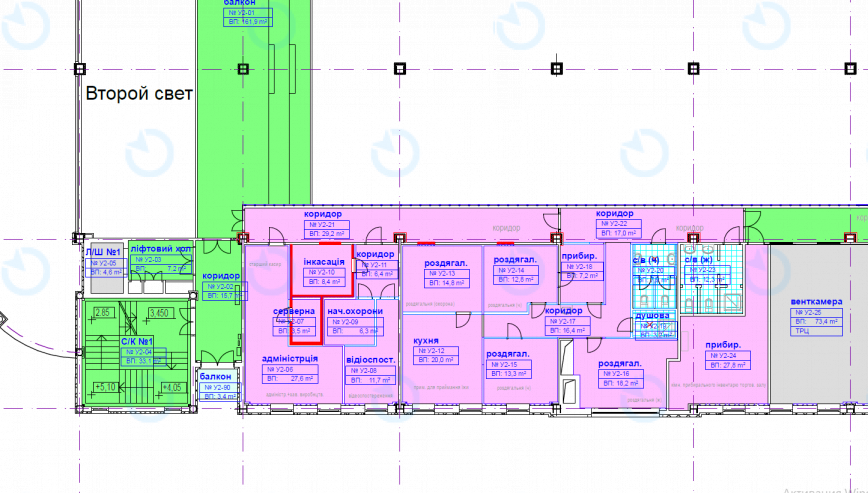
  • Площа, м2: 303 L
  • поверх: 2
  • планування: кабінетна
  • стан: без ремонту
  • кондиціювання: центральне
  • Додатково: Свій с/вузол
Додати в порівняння
З усіма додатковими питаннями звертайтеся за тел.
Business
Centre
Інформація про Бізнес-центр
Натисніть для відображення карти
Оренда
Бізнес-центр
B
Ультрамарин
Загальна площа, м2: 1000
  • Район: Солом'янський
  • адреса: вул. Василя Липківського, 1А
Від 5 $2