Офіс Оренда офісу 180 м.кв 0 поверх Бехтерівський

Від 13 $ / м²
Статус - Вільний
Комунальні - за лічильниками
Характеристики
  • Тип угоди: Оренда
  • Розміщення: Бехтерівський
  • Клас: Нежитлове
  • Адреса: пров. Бехтерівський, 4В
  • Район: Шевченківський
  • Метро: Лук'янівська
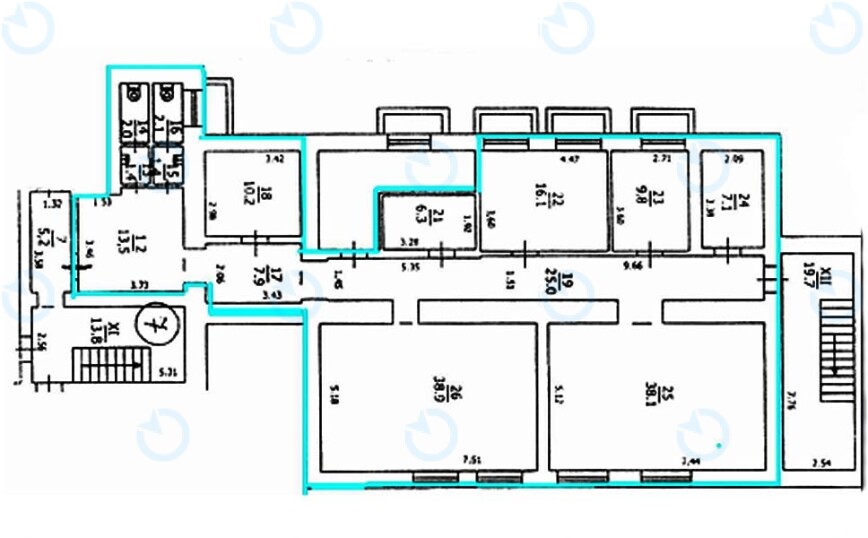
  • Площа, м2: 180 M
  • поверх: 0
  • планування: кабінетна
  • стан: офісний ремонт
  • кондиціювання: спліт-система
Додати в порівняння
З усіма додатковими питаннями звертайтеся за тел.
Business
Centre
Інформація про Бізнес-центр
Натисніть для відображення карти
Оренда
Помещение
Нежитлове
Бехтерівський
Загальна площа, м2: 2159
  • Район: Шевченківський
  • адреса: пров. Бехтерівський, 4В
Від 16.00 $ 2