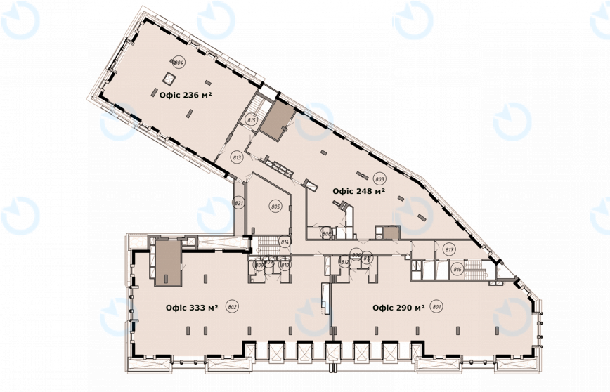
Офіс Оренда офісу 1397 м.кв 8 поверх Олегівський

Від 25 $ / м²
Статус - Вільний
Комунальні - по факту використання
Характеристики
  • Тип угоди: Оренда
  • Розміщення: Олегівський
  • Клас: A
  • Адреса: вул. Нижній Вал, 3-7
  • Район: Подільський
  • Метро: Контрактова площа
  • Площа, м2: 1397 XXL
  • поверх: 8
  • планування: open-space
  • стан: shell&core
  • кондиціювання: встановлено
Додати в порівняння
З усіма додатковими питаннями звертайтеся за тел.
Business
Centre
Інформація про Бізнес-центр
Натисніть для відображення карти
Оренда
Бізнес-центр
A
Олегівський
Загальна площа, м2: 17000
  • Район: Подільський
  • адреса: вул. Нижній Вал, 3-7
Від 20.00 $ 2